詳細図の各図面について④
2023.04.06 建築コラム
こんにちは。安良城です。
新年度が始まる4月。
入社、入学など新しい生活がスタートした方も多いかと思います!
娘も保育園で新しいクラスに進級し、一つお姉さんになりました^^
本社コンセプトハウスもオープンし、私自身も新たな気持ちで頑張りたいと思います!
前回に引き続き詳細図に関してのお話をさせていただきます。

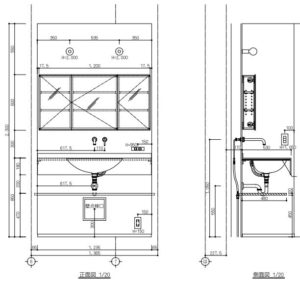
今回は設備図についてです。
設備図とは、建築の設備に関わる図面で、給排水配管やガス設備などが示された図面になります。
造作洗面台など、水廻りの造作家具は設備図が必要になります。

水栓や排水トラップの位置い合わせて、給排水配管を描いていきます。
この時に注意しないといけないのが、土台や根太など構造躯体との兼ね合いです。
配管の位置に土台があると、配管を通すことができないため取付けることができません。

このように構造との関わりが大事になっていきます。
実際に図面を描くとよく分かりますね!
もし取付けができない箇所に配管がある場合は、検討して位置をずらしたりします。
こうして造作家具が出来上がるんですね^^
みなさまもお家のキッチン下や、洗面台の下など配管が通っているか確認してみてください!