資料ダウンロード 見学会情報 無料設計相談会

詳細図の各図面について⑤

2023.04.21 建築コラム

こんにちは。安良城です。

4月も終わりに近づき、暖かい日も増えてきましたね!

日中は熱い日もあり、まだ身体がついていけてないです(笑)

まもなくGWに突入です!

連休をいっぱい満喫したいと思います^^

本日も詳細図についてお話させていただきます。

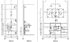
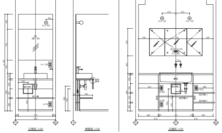
今回は展開図についてです!

展開図とは、室内から4面の壁面の詳細を伝える図面で、平面図などでは分からない天井や窓の高さなど分かりやすく描かれた図面です。

詳細図にも前から見た展開図と、側面方向から見た展開図(側面図)を描きます。

平面図と一緒に展開図をみるとよく図面に描かれている事がよく理解できます。

平面図では表現できない高さ関係の寸法も一目みただけで分かりますね!

また壁の仕上げのタイルや、照明、アクセサリー類(タオル掛けやペーパーホルダーなど)も展開図だとどの位置に設置したらよいかイメージしやすいです!

お打ち合わせの際も平面図と展開図をみながら造作家具の詳細を決めていくことが多いです。

平面的なものだけではなく、実際に展開図にしてイメージをしていくことでより実物の完成形に近いものができあがります!

一覧に戻る