詳細図の各図面について⑥
2023.05.30 建築コラム
こんにちは、安良城です。
最近は道端で紫陽花が咲いているのをよく見かけます。
紫や青、ピンク、白など様々な色があり、
見ているこっちも楽しくなります^^
本日も詳細図についてお話させていただきます。
今回は断面図についてです!
断面図とは、建物などに対して垂直に切断した断面を表す図面になります。
また断面図と比較されやすい平面図は水平に切断した面を表す図面になっています。


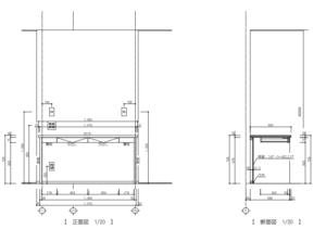
こちらは造作カウンターの詳細図です。
平面図では真上から見た図面になりますが、
断面図をみると天板の下にある引出し部分や下地材がみえてきます。
また木材の断面を斜線で表現していたり、細かい納まりを表現しています。

平面図や、正面図からはどのようにカウンターが組立てられているのか、
また引出し部分の細かな詳細までは断面図をみないと分からないことが多いです。

完成のイメージは平面図や正面図の方が分かりやすいですが
職人さんや造り手側からすると断面図はとても大切な図面になります!