詳細図の各図面について⑧
2023.09.08 建築コラム
こんにちは。安良城です。
最近は、日中暑い日が多いですが、
朝や夜は暑さが落ち着き過ごしやす季節になってきました!
季節の変わり目なので、みなさまも体調にお気をつけてくださいね。
本日も詳細図についてお話させていただきます。
今回は木取図についてです。
これまで7回もの詳細図の図面についてお伝えさせていただきましたが、
今回が最後の説明になります!
木取図とは一本、一枚の木材や集成材、合板などから必要な材料を効率よく切り出すための図面になります。
造作家具を造る際に、必要となる材料の木取図を描くことで、 無駄なく材料を使うことができ、
また材料の注文をする際にも木取図を参考にして頼むことができます。
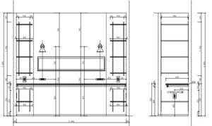
こちらは造作カウンターと棚の木取図になります。
それぞれの寸法別に描かれています。


こちらの木取図で造られたのがこちらになります。

こちらは階段の木取図になります。
廻り階段の場合は段板の形状が変わったりします。
必要な寸法を記入し、サイズに合った材料で実物は造られます。


木取図は他の部材との兼ね合いや納まりも考えながら作成し、
現場にはその図面通りに造られた材料が搬入され、造作の家具が造られます^^
今まで詳細図の説明をご覧いただきありがとうございました!
詳細図に描かれている図面はたくさんの内容が詰まった図面になります。
図面が実際の形になるまでにたくさんの人の手が加わってできあがります。
SUBACOのお家を考えられてる方はぜひ、造作家具についても考えてみてくださいね(^^)