新事務所の検討
2025.08.28 スタッフコラム
こんにちは。インテリアコーディネーターの玉岡です。
最近は9月1日にオープン予定の新しい三宮事務所の準備に追われています。
事務所スペースと、打合せテーブルが3セットの小さな事務所です^^
今回は備え付けソファをつくったり、
打ち合わせテーブルもオリジナル制作です。
SUBACOではソファのオーダーは過去に事例がありますが、わたし自身ははじめての取り組みです。
家具屋さんと打合せをして、形を決めて、カバーのサンプルを取り寄せて、、
期間と予算と兼ね合いで思ったようにできない部分があったり😂
していますが、今週には設置される予定なので楽しみです。
(思い描いているイメージになるのかどきどきです)

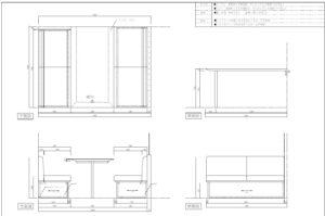
図面はこんな感じ。
ちなみに、打ち合わせスペースは
当初の予定では造作キッチンも置いたりしてカフェ風に!と社長と話をしていたのですが
方針が変わり、事務所側を広げてキッチンも事務所側にミニキッチンを、、という計画になりました。
最初に検討してつくったイメージパースはボツになってしまったのですが
せっかく作ってもったいないのでここで供養させてください。笑


オープンまでもう少し、頑張ります👀!!