造作家具と詳細図
2022.09.30 スタッフコラム
こんにちは。安良城です。
暑い日々が続いていた夏も落ち着き、過ごしやすい季節になってきました。
最近は6月の梅仕事で作った梅酒を飲むのがマイブームになっています。
炭酸やお湯で割ったり、氷を入れてロックで飲んだりと…一日の終わりに一杯ほど飲むのが楽しみです(^^)
これからの季節、おいしいものもたくさんあるので、お酒のお供におつまみでも作りたいなと思います♩
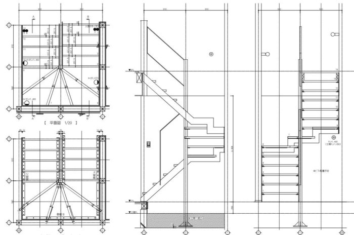
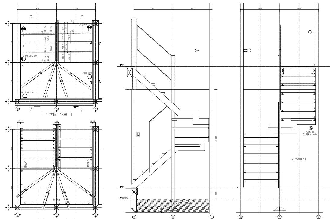
本日は造作家具と造作家具の図面(詳細図)についてお話させていただきます。
SUBACOでは洗面台や階段、収納家具、庇などそれぞれのお家のご要望に合わせて造作家具を造っています。他ではない、一つだけの造作家具です。

お打合せでご要望をお聞きし、どんな仕様がいいのか、色はどんなものにするのか、サイズはどうするのか、照明やコンセントはどこに設置するのか…などイメージを実際の形にできるように細かい内容を決めていきます。
そこから図面を描き、家の構造や実際に製作できるのかなどを検討していきます。

イメージしていたものを図面に描いてみると、もっとこうした方がいいな…ここにはこんな照明を取り付けたいな…とイメージだけでは分からなかった事がたくさんでてきます!

何度も打合せや検討を重ねて図面ができあがり、現場で大工さんや職人さんが一から造っていきます!

実際に完成した造作の鉄骨階段がこちらです!
おうちづくりはたくさんのお打合せがあり決めることも多いですが、一からつくりあげていくおうちづくりは思い出もたくさんでき、完成した時はとても感動します^^