詳細図の各図面について①
2022.11.17 建築コラム
こんにちは。安良城です。
11月に入り一段と寒い日が増えてきました。
今年も残り1ヶ月と少し…あっという間に年越しを迎えそうです!
やり残したことがないように年末に向けて計画を立てたいと思います!
今回は前々回にご紹介しました造作家具の詳細図について、何回かに分けてご説明したいと思います^^
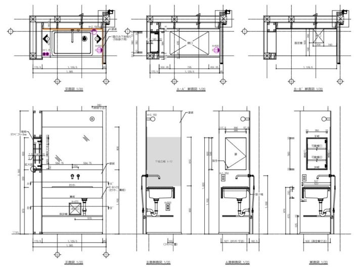
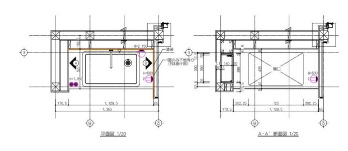
詳細図には大きく分けて平面図、電気図、仕上図、設備図、展開図(正面図・側面図)、断面図、仕上表、木取り図を基準に描いています。


他に必要な図面、例えば、細かい部分の拡大詳細図や造作家具に使われる部品図面など必要に応じて描き分けています!誰でも分かりやすく、見やすい図面を描くように心がけています。

本日は上記で説明した平面図からご紹介させていただきます!
平面図は建物を水平方向に切断し真上から見た図面のことを言います。窓などの建具の位置やそれぞれの部屋の間取りなど分かりやすく描いた図面になります。
詳細図にもこのように平面図を基準にして造作家具のサイズや位置を決め、電気配線や設備配管、構造上の納まりや取り合いなどを考えていきます。設置位置が決まると必要な箇所に寸法や名称、注意事項などコメントを入れていきます。

こうして出来上がったのが総サイズに必要な平面図になります^^
ここから電気図、仕上図、設備図を描き、正面図…と続いていきます!
次回は電気図をご紹介します(^^)