詳細図の各図面について②
2023.02.03 建築コラム
こんにちは。安良城です。
2月に入りまもなく春になりますね^^
はやく寒波も落ち着いて暖かい春を迎えたいものです!
本日は2回目の詳細図面の紹介になります。
2回目は詳細図に描いてある電気図のお話をさせていただければと思います。
電気図とはスイッチやコンセント、照明器具の位置や換気扇の位置、エアコン、給湯器の位置を記載している図面になります。
実際に職人さんが電気図を確認して配線工事をしてくださいます!
この電気図を詳細図にも描くことが多く、今回は詳細図の電気図を確認していきたいと思います。

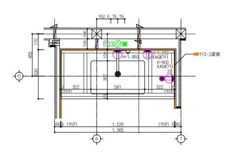
こちらは造作洗面台の平面詳細図に電気図が描いてあります。
ピンク色のマークで示しているのが電気図のコンセント、スイッチ、照明になります。
この位置にそれぞれの電気器具が取付されます。
位置はもちろんの事、高さや器具の種類(2口コンセントや専用コンセント、家具用コンセント、ブラケット照明やペンダントライトなど)をマークや文字でコメントし誰が見ても分かるように描きます。


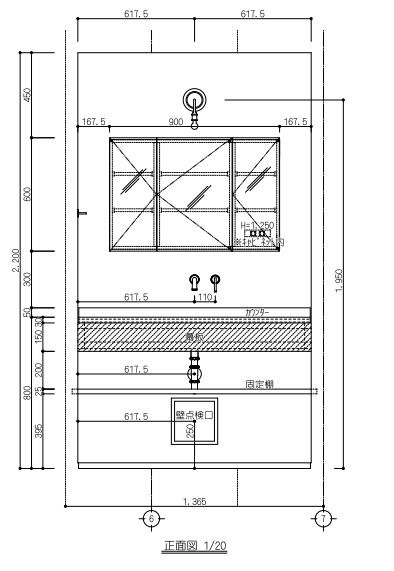
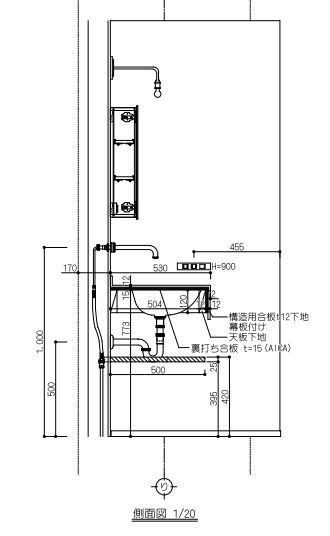
また正面図や側面図に実際の器具の取付位置を描くことでイメージがしやすいですね!
また正面図や側面図に実際の器具の取付位置を描くことでイメージがしやすいですね!
コンセントなどの器具の位置は実際に現場でお客様と確認したり、図面に描いて細かく確認していただきます。
使いやすい場所に必要な器具をどれだけ取付けするか…
また照明はどんなデザインのものがよいか、いろいろ考えると楽しいですよ(^^)