プランニングについて
2022.11.14 最新情報
こんにちは!深澤です!
日に日に気温が低くなってきますね。
昼夜の気温差が激しくなってきますので、お体にはお気をつけくださいね。
現在建築中の私の自宅ですが、年末にはおおよそ完成し、
年明けにはみなさまにご見学いただけるようになるかと思います^^
完成を楽しみにお待ちください!
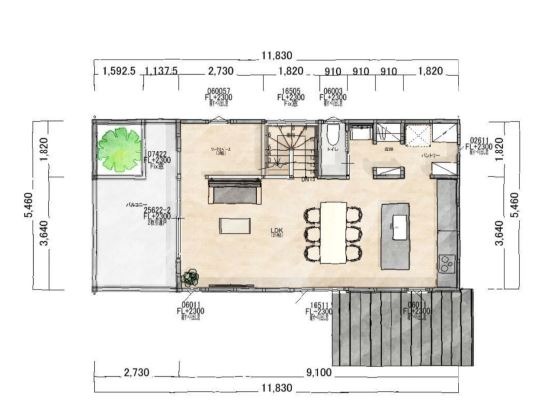
今回のプランニングについてですが、2階リビングのご提案です!
1階にLDKや水回りを計画することも多いですが、周辺の環境から視線を感じず、遠くを眺められる2階リビングもなかなかいいものです!
家族の時間を大切に、景色の彩りを感じられる家。
そんなイメージで計画させていただきました!う

1階プラン

2階プラン
西側の眺望を取り入れ、夏の西日を遮るためにつくったインナーバルコニーです。
一部の床をくり抜き、そこに植栽を植え込むことで緑を感じられる、
心地よさつなげた計画をさせていただきました!

内観パース

外観パース
周辺の環境とご要望をしっかりとまとめ、計画していくことが重要ですね!
今後の更新もお楽しみにしててくださいね!
深澤