資料ダウンロード 見学会情報 無料設計相談会

プランニングについて

2023.01.23 最新情報

こんにちは!深澤です!

2023年が始まって、もうすぐ1ヶ月が終わりますね^^;

ほんとに時が経つのは早いですね><

これから大寒波がくるそうなので、お体にはお気をつけくださいね!

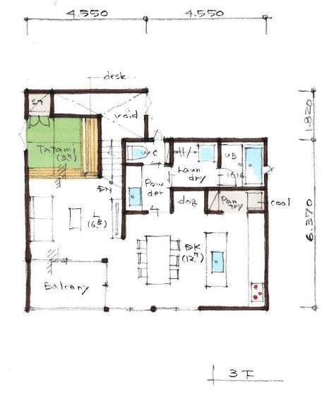
新しいプランニングをご紹介させていただきます!

テーマは「空と景色と緑と暮らす家」です!

神戸の夜景を見渡す好立地で建築の計画をさせていただきました^^

隣地の高さを考えながら、スキップフロアを採用し、

より景色を取り入れる計画をご提案させていただきました!

1F

2F

3F

断面図

パース

次回の更新も楽しみにお待ちください!

深澤

一覧に戻る